產品簡介
DB(DK)系列吊式圓盤給料機是一種使用廣泛的連續式容積加料設備,該設備通過轉動的圓盤和可調節的刮料板把物料從容器中刮送到受料設備中,適用于各種非粘性且流動性不是非常好的物料。該設備設計緊湊,結構簡單,調節方便,使用可靠,維修量小,噪音很低,是水泥廠、化工行業、發電廠等部門常用的系統配給料設備,同時可作為其它行業非粘性物料的喂(給)料設備。DB型為封閉吊式結構,防塵,防灰,但調節運轉均在封閉的殼體內。DK型為敞開吊式結構,適用于灰塵性不大的物料,并且運轉,調節均直觀明了。
適用行業
適應用于化工行業、水泥廠、發電廠等部門常用的系統配給料設備。
適用物料
適用于適各種非粘性且流動性不是非常好的物料、灰塵性不大的物料,如礦石、煤粉、水泥、熟料、石灰石、黏土等粉狀、粒狀或小塊狀物料。
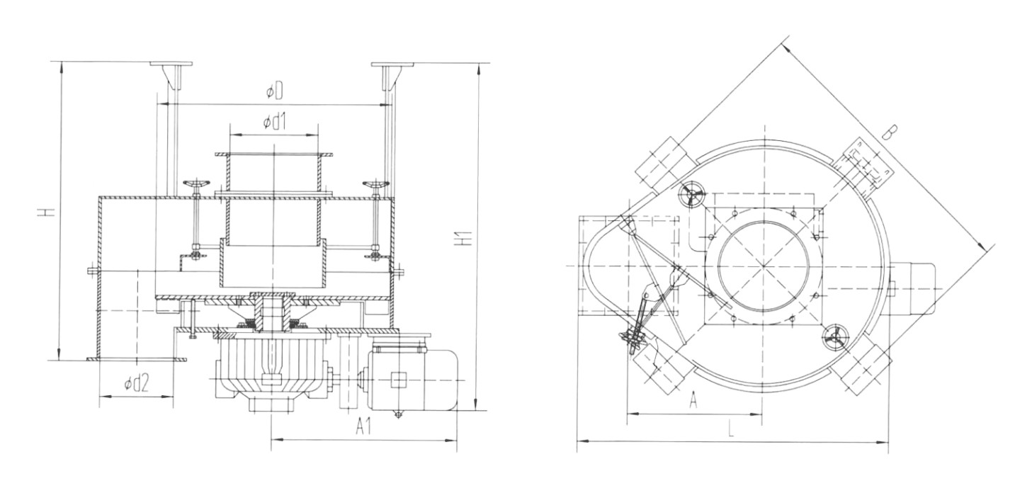
產品結構
吊式圓盤給料機主要由電動機、減速裝置、圓盤、盤套、刮板、喂料調節組成。
工作原理
吊式圓盤給料機是由電動機直接驅動減速機構減速后,由減速輸出軸直接輸出動力,并直接驅動著圓盤作每分鐘5-55m的邊緣線速度的低速(0.7~10r/min)轉動,通過卸料刮刀把料筒和圓盤間隙中溢出≤50mm顆粒或粉狀物料劃落在給料機下面不同的輸送設備上,完成設計流程所需要的給配料作業。
產品特點
1、DB型為封閉式吊式結構,防塵,防灰,但調節運轉均在封閉的殼體內;
2、DK型為敞開式吊式結構,適用于灰塵性不大的物料,并且運轉,調節均直觀明了;
3、吊式圓盤給料機設計緊湊,結構簡單,調節方便,使用可靠,維修量小,噪音很低。
型號說明






客服1